彦根市・米原市・東近江市で土地や中古住宅などの不動産の購入・売却はLIXIL不動産ショップハヤシ
0749-27-8888 営業時間 9:00~18:00(火・水定休)
MENU
  1. HOME
  2. 売地
  3. 彦根市後三条町

SEARCH 彦根市後三条町

売地
お気に入りに登録されました! お気に入りはコチラ

彦根市後三条町

価 格
1,380万円
土地面積
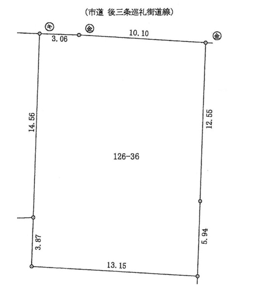
243.43m²
土地権利
所有権
建築条件
所在地
彦根市後三条町
交通
JR東海道線 彦根駅 徒歩20分

物件詳細

物件名
彦根市後三条町
所在地
彦根市後三条町
交通
JR東海道線 彦根駅 徒歩20分
価格
1,380万円
土地面積
243.43m²(73.63坪) 公簿
土地権利
所有権
現況
更地
建ぺい率
80%
容積率
200%
建築条件
接道状況
一方
【北東】
公道 幅員約3.70m 間口約13.10m
地目
宅地
地勢
平坦
都市計画
市街化区域
用途地域
近隣商業地域
国土法届出
不要
設備
水道:公営/排水:下水
小学校区
城東小学校
中学校区
東中学校
引渡し時期
相談
取引態様
仲介
備考
県道中心線から30m以降、一住
情報更新日
2026年03月15日
次回更新予定日
2026年03月29日

周辺地図

ローンシミュレーション

物件お問い合わせNo. b001183-014

近くの類似物件

  • お気に入りに登録されました! お気に入りはコチラ
    売地

    東沼波町プライムシティ 9号地

    価 格
    1,281.6368万円
    土地面積
    173.64m²
    土地権利
    所有権
    建築条件

    彦根市東沼波町

    JR東海道線 南彦根駅 徒歩17分

  • お気に入りに登録されました! お気に入りはコチラ
    売地

    グリーンヒル南彦根 COLORSタウン 3号地

    価 格
    698万円
    土地面積
    332.24m²
    土地権利
    所有権
    建築条件

    彦根市法士町

    近江鉄道多賀線 高宮駅 徒歩19分

  • お気に入りに登録されました! お気に入りはコチラ
    売地

    彦根市後三条町

    価 格
    450万円
    土地面積
    200.68m²
    土地権利
    所有権
    建築条件

    彦根市後三条町

    JR東海道線 南彦根駅 徒歩19分

  • お気に入りに登録されました! お気に入りはコチラ
    売地

    ホームタウン大堀 第Ⅱ期 6号地

    価 格
    1,151.8141万円
    土地面積
    177.10m²
    土地権利
    所有権
    建築条件

    彦根市大堀町

    近江鉄道多賀線 高宮駅 徒歩17分

  • お気に入りに登録されました! お気に入りはコチラ
    売地

    東沼波町プライムシティ 14号地

    価 格
    1,279.2011万円
    土地面積
    173.31m²
    土地権利
    所有権
    建築条件

    彦根市東沼波町

    JR東海道線 南彦根駅 徒歩17分

  • お気に入りに登録されました! お気に入りはコチラ
    売地

    グリーンヒル高宮Ⅱ期 10号地

    価 格
    1,182.8186万円
    土地面積
    152.74m²
    土地権利
    所有権
    建築条件

    彦根市高宮町

    近江鉄道多賀線 高宮駅 徒歩6分

TOPへ

LIXIL不動産ショップハヤシ